Leistungen

Ich habe mich auf die Ausführungsplanung (Leistungsphase 5 gemäß HOAI) im Hochbau spezialisiert.

Mein Leistungsportfolio

Schal- und Bewehrungsplanung für den Massivbau:

  • Hochbau
  • Ingenieurbau inkl. Brücken
  • Fertigteilplanung
  • Fertigteilplanung für Produktion
  • Betonfassaden

Basierend auf der vom Auftraggeber bereitgestellten Architekturplanung und Statik erstelle ich ein maßgeschneidertes Angebot inklusive Vertragsentwurf.

Zusätzlich erhalten Sie eine detaillierte Planliste mit den Inhalten und einer Übersicht der zu liefernden Pläne.

Die Schal- und Bewehrungspläne werden von meinem erfahrenen Team in Bosnien und Herzegowina erstellt.

Ingenieurbüro Mirsada Rose

Meine Leistungen im Detail

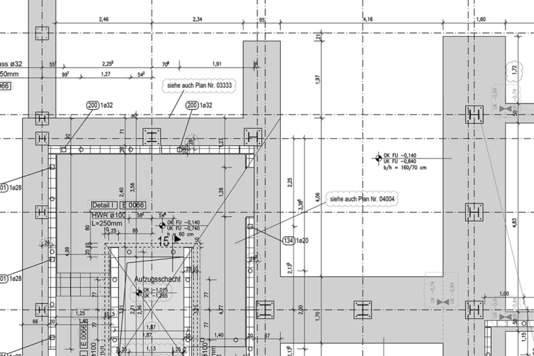
Schalpläne

Schalpläne

erstellt mit AutoCAD

Bewehrungspläne

Bewehrungspläne

erstellt mit ArmCAD

Formate: Die fertigen Pläne erhalten Sie in den Dateiformaten PDF und DWG. Bei der Erstellung der Pläne werden die aktuelle Normen DIN und Eurocode berücksichtigt.

Ihre Vorteile auf einen Blick

Klare Zielvereinbarung

Mit meinem Angebot erhalten Sie eine Planliste zur genauen Definition des Leistungssolls.

Hohe Qualität

Mein Team besteht ausschließlich aus ausgebildeten und erfahrenen Ingenieuren.

Termingerechte Lieferung

Ich garantiere die pünktliche Lieferung der Pläne gemäß Terminvereinbarung.

Kosteneffizienz

Mein Geschäftsmodell ermöglicht eine preiswerte Erstellung Ihrer Pläne.

Meine Kapazitäten ermöglichen auch die Abwicklung von Großprojekten. Sprechen Sie mich einfach an, um die Machbarkeit Ihres Vorhabens zu besprechen!

Kontaktieren Sie mich, um mehr über meine Arbeit und wie ich Ihr Projekt unterstützen kann, zu erfahren. Ich freue mich auf Ihre Anfrage!

Bewehrungsplan und Schalplan: Grundpfeiler der Bauplanung

In der Bauplanung spielen Bewehrungspläne und Schalpläne eine zentrale Rolle. Diese Pläne gewährleisten die strukturelle Integrität und die effiziente Ausführung von Bauprojekten. In diesem Artikel erklären wir die Bedeutung und die Erstellung dieser Pläne sowie ihre Vorteile.

Was ist ein Bewehrungsplan?

Ein Bewehrungsplan ist eine technische Zeichnung, die die genaue Platzierung der Bewehrungselemente in Betonbauteilen beschreibt. Bewehrungselemente, meist aus Stahl, werden in den Beton eingebettet, um dessen Festigkeit zu erhöhen. Ein Bewehrungsplan enthält detaillierte Angaben zur Anzahl, Größe, Form und Position der Bewehrungsstäbe sowie zu den erforderlichen Betondeckungen.

Was ist ein Schalplan?

Ein Schalplan ist ein ergänzender Ausführungsplan zur Darstellung von Bauwerken, die aus Beton hergestellt werden sollen. Im Schalplan werden die für das Tragwerk erforderlichen Betonbauteile des Bauwerks mit den wesentlichen Details dargestellt. Auf dem Plan sind Schalkanten, Maßketten, Lage der Aussparungen, Durchführungen und Schlitze, Sichtbetonflächen oder ähnliches angegeben. Es werden auch Hinweise auf Arbeitsfugen, Gebäudefugen oder Sollbruchstellen auf dem Schalplan vermerkt. Bei Schalplänen für Decken werden die Bauteile unterhalb der Decke dargestellt, welche als Auflager für die Decke fungieren. Zudem werden auch aufgehende Bauteile oberhalb der Decke dargestellt.

Die Bedeutung von Bewehrungs- und Schalplänen

  • Strukturelle Sicherheit: Beide Pläne tragen maßgeblich zur Sicherheit und Stabilität des Bauwerks bei. Der Bewehrungsplan sorgt dafür, dass die Bewehrungsstäbe richtig platziert sind, um die Belastungen aufzunehmen, während der Schalplan sicherstellt, dass die Geometrie der geplanten Betonbauteilen genau ist.
  • Effizienz und Präzision: Durch detaillierte Pläne können Bauarbeiter die Bewehrung und Schalung effizient und präzise einbauen. Dies reduziert Fehler, Nacharbeiten und Materialverschwendung.
  • Koordination und Planung: Bewehrungs- und Schalpläne erleichtern die Koordination zwischen verschiedenen Gewerken. Sie dienen als Referenzdokumente, die sicherstellen, dass alle Bauarbeiten nach den vorgesehenen Spezifikationen ausgeführt werden.

Erstellung von Bewehrungs- und Schalplänen

Die Erstellung dieser Pläne erfordert eine enge Zusammenarbeit zwischen Architekten, Bauingenieuren und Fachplanern. Der Prozess beginnt mit der statischen Berechnung des Bauwerks, um die Belastungen und Kräfte zu ermitteln. Auf dieser Grundlage werden die Schal und -Bewehrungspläne entwickelt.

Werkzeuge und Software

Heutzutage werden Bewehrungs- und Schalpläne meist mithilfe spezialisierter CAD-Software erstellt. Programme wie AutoCAD, Revit oder Allplan ermöglichen die Erstellung präziser und detaillierter Zeichnungen.

Vorteile von Bewehrungs- und Schalplänen

  • Optimierte Bauabläufe: Detaillierte Pläne ermöglichen eine bessere Planung und Koordination der Bauarbeiten, was zu einer reibungsloseren Ausführung führt.,
  • Kosteneffizienz: Durch die präzise Planung und Ausführung der Bewehrung und Schalung werden Materialverschwendung und Bauzeiten reduziert, was zu Kosteneinsparungen führt.
  • Erhöhte Sicherheit: Die genaue Planung und Ausführung der Bewehrung und Schalung trägt zur Sicherheit auf der Baustelle bei und reduziert das Risiko von Unfällen und Baumängeln.

Fazit

Bewehrungs- und Schalpläne sind essenzielle Werkzeuge im Bauwesen. Sie sorgen für die strukturelle Integrität und die effiziente Ausführung von Bauprojekten. Durch den Einsatz moderner Softwarelösungen können Bauunternehmen und Ingenieure hochpräzise und detaillierte Pläne erstellen, die den Anforderungen komplexer Bauvorhaben gerecht werden.
Für weiterführende Informationen und professionelle Unterstützung bei der Erstellung von Bewehrungs- und Schalplänen stehe ich Ihnen gerne zur Verfügung. Kontaktieren Sie mich noch heute, um den Erfolg Ihres Bauprojekts zu sichern!